
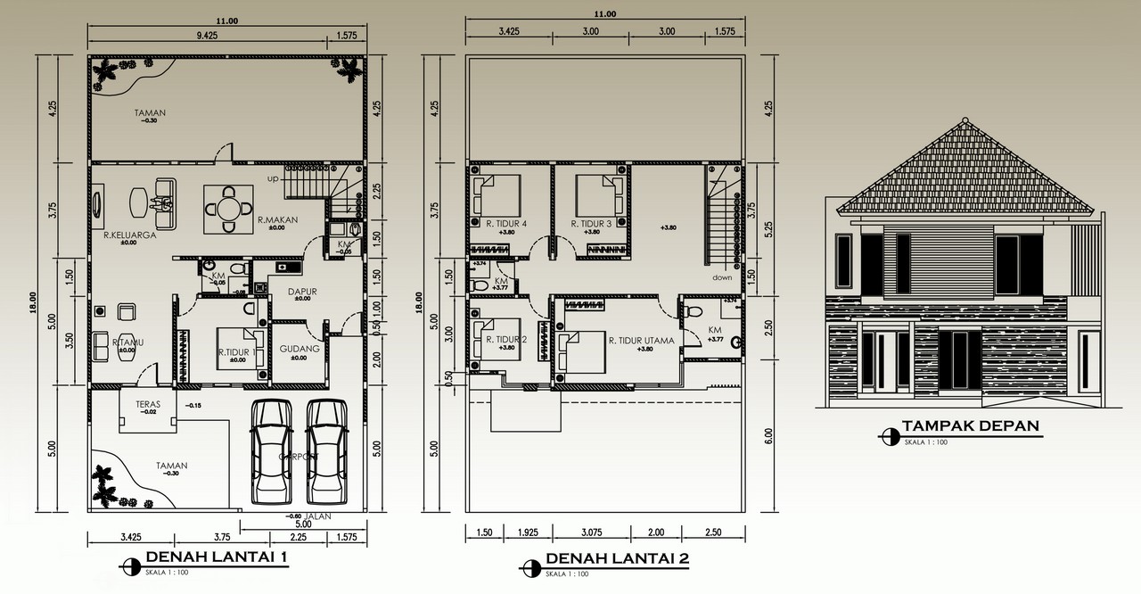
GambarĀ denah dan tampak depan sebuah rumah tinggal dua lantai. Ini adalah jenis gambar arsitektur yang digunakan untuk merencanakan dan memahami tata letak serta tampilan luar sebuah bangunan.
Berikut adalah keterangan rinci untuk setiap bagian gambar:
- Denah Lantai 1 (kiri):
- Menunjukkan tata letak ruangan pada lantai dasar (lantai 1).
- Area Eksterior Depan: Terdapat taman depan dengan level -0.30 dari 0.00 lantai dalam, dan area jalan dengan level -0.60. Ada garasi yang cukup untuk dua mobil.
- Area Masuk: Teras dengan level -0.15 dari 0.00 lantai dalam, yang mengarah ke Ruang Tamu dengan level +0.00.
- Ruang Utama:
- Ruang Keluarga: Berada di bagian depan, dengan area terbuka (void) di atasnya (“UP” menunjukkan tangga naik ke lantai 2).
- Ruang Makan: Berdekatan dengan dapur.
- Dapur: Terletak di tengah, dekat dengan Ruang Makan.
- Gudang: Berada di dekat dapur.
- Kamar Tidur (R. TIDUR): Terdapat satu kamar tidur di lantai 1.
- Kamar Mandi (KM): Terdapat satu kamar mandi di lantai 1.
- Area Belakang: Terdapat taman belakang dengan level -0.30.
- Ukuran: Tertera dimensi panjang total 11.00 meter dan lebar total 9.425 meter.
- Skala: 1:100.
- Denah Lantai 2 (tengah):
- Menunjukkan tata letak ruangan pada lantai atas (lantai 2).
- Kamar Tidur: Terdapat tiga kamar tidur tambahan di lantai 2:
- R. TIDUR 2
- R. TIDUR 3
- R. TIDUR UTAMA (kamar tidur utama), yang kemungkinan lebih luas.
- Kamar Mandi (KM): Terdapat dua kamar mandi di lantai 2, satu berdekatan dengan R. TIDUR UTAMA dan satu lagi di area umum.
- Area Sirkulasi: Terdapat area tangga naik dari lantai 1 dan turun kembali (“down” menunjukkan tangga turun ke lantai 1).
- Level Lantai: Umumnya level lantai 2 adalah +3.80 atau +3.77 (untuk kamar mandi).
- Ukuran: Tertera dimensi panjang total 11.00 meter dan lebar total 9.425 meter (sama dengan lantai 1).
- Skala: 1:100.
- Tampak Depan (kanan):
- Menampilkan tampilan eksterior rumah dari arah depan.
- Memberikan gambaran visual tentang bentuk atap, jenis jendela, pintu masuk, dan komposisi fasad secara keseluruhan.
- Terlihat desain atap pelana.
- Ada kombinasi material dan tekstur pada dinding fasad (misalnya, area dengan garis-garis horizontal dan area polos).
- Skala: 1:100.
Secara keseluruhan, gambar ini adalah set lengkap dari rencana arsitektur dasar untuk sebuah rumah tinggal, yang memungkinkan pemahaman mendalam tentang tata ruang internal, fungsi masing-masing area, dimensi, serta bagaimana rumah tersebut akan terlihat dari luar.
